Navigation überspringen
Будівельне обладнання - безпека дорожнього руху
Міське обладнання
Navigation überspringen
Увійдіть в систему
Зареєструватися
Ваш кошик порожній.
Navigation überspringen
Головна сторінка
Будівельне обладнання - безпека дорожнього руху
Безпека дорожнього руху
Будівництво інфраструктури
Мобільна захисна огорожа
Опалубка
Складні будівельні естакади
Зберігання - транспортування
Building site installation
Barrier-free construction site
Міське обладнання
Стовпи загородження
Паркувальні стовпи
Декоративні стовпи
Нержавіюча сталь
Бар'єрні огорожі
Поворотні бар'єри
Дорожнє та вуличне обладнання
Захисне обладнання
Інформація
Відбиток
Захист даних
Загальні положення та умови
Право на відмову
Сервіс
Контакти
Пошук
Обліковий запис
Увійдіть в систему
Зареєструватися
Ціна
Кошик для покупок
Navigation überspringen
Будівельне обладнання - безпека дорожнього руху
Безпека дорожнього руху
Панельна огорожа
Панель дорожнього руху
Опорні плити
Стелажі для транспортування та зберігання
Дорожні конуси
Попереджувальні ліхтарі
Бетонні огорожі
Захисні огорожі
Тримачі дорожних знаків з фіксаторами
Сталеві труби та затискачі
Installation devices
Дорожні знаки
Guardrail bracket
Ground spike
Warning sign
Бетонні опори
Overrun and collision protection
Системи захисту кабелів
Speed bumps and ramps
Collision protection and edge protection
Розмітка для підлоги
Знаки тимчасового руху
Мости для кабелів
Будівництво інфраструктури
Траншейні кріплення
Траншейний міст
Кришкі люків
Concrete tamper
Захисні паркани та огороджувальні стрічки
Спеціальні перекриття
Намети для будівельних майданчиків
Кордових кілки та інші інструменти
Мобільна захисна огорожа
Мобільні оцинковані паркани
Мобільний оцинкований паркан Сендзимір
Опорні плити для мобільних огорож
Аксесуари для мобільних огорож
Двері мобільних огорож
Стелажі для транспортування та зберігання
Gates
Ворота будівельних огорож
Folding gate
Security and registration systems
Barrier systems
Бар'єрні огородження
Пересувна бар'єрна поліцейська огорожа
Bühnengitter
Мобільний паркан Trapez
Дерев'яний мобільний паркан
Опалубка
Стійки опалубки
Обладнання для опалубки
Аксесуари для опалубки
Похила опора
Віконні опори
Стійки опалубки
Затискачі опалубки
Риштування
Посилені стійки опалубки
Concrete silo
Mortar tubs
Складні будівельні естакади
Кривошипні естакади для риштуваннь
Будівельна екстакада
Будівельні сходи, драбини та сходинки
Construction protection door
Будівельні сходинки
Затискачі безпеки
Сітки робочих будівельних зон
Кронштейни для риштування
Аксесуари для кріплення риштувань.
Додаткові контейнери для стелажів
Зберігання - транспортування
Піддони для зберігання та транспортування
Транспортні контейнери
Європіддони
Мобільний стенд і транспортний ящик
Вилкові навантажувачі
Візок для транспортування
Ручний візок
Захисні транспортні сітки
Захист країв і протиковзкий килимок
Стяжні ремені
Вантажний строп
Конструкційна опорна система
Стропи
Building site installation
Lamp, camera, flag, advertising poles
Soil protection
Earthing and cable routing
Pedestrian tunnel
Mobile plan stand
Barrier-free construction site
Mobility aids
Blind protection
Міське обладнання
Стовпи загородження
Стовпи загородження
від Ø 42 мм до 60 мм
Ø 76 мм
від Ø 89 мм до 273 мм
70 мм x 70 мм / 100 мм x 100 мм
Світильники для стовпів
Ланцюгові стовпи
Гнучки стовпи
Аксесуари
Аксесуари
Кріплення
Ланцюг
Ґрунтова втулка
Паркувальні стовпи
Транзитні бар'єри
Паркувальні шлагбауми
Позначення для паркування
Паркувальні та направляючі пороги
Декоративні стовпи
Напівкуляста головка
Плоска головка
Головка у виді кулі
Головка у виді шолома
Cтовпи, які вироблені із переробних матеріалів
Нержавіюча сталь
Бар'єрні стовпи з нержавіючої сталі
Декоративні стовпи з нержавіючої сталі
Обручі з нержавіючої сталі
Кортенова сталь
Бар'єрні огорожі
Трубчасті обручі
Ø 48 мм
Ø 60 мм
Ø 76 мм
Бар'єр доступу
Ø 60 мм
70 x70 мм
Перила безпеки
Захисні перила
Пішохідні огорожі
Захисні огорожі
Мобільний бар'єр
Бар'єри обмеження висоти
E-charging station protection
Поворотні бар'єри
Поворотний шлагбаум
Бар'єр доступу
Ручний бар'єр
Аксесуари
Дорожнє та вуличне обладнання
Велопарковки
Фігурні велопарковки
Багаторядна велопарковка
Велопарковки для E-bike
Парковки електросамокатів
Підставки для сушіння білизни
Захисні обручі для захисту дерев
Контейнери для відходів
Вазони
Захисне обладнання
Бар'єрні пости
Захисні бар'єри
Кутові демпфери
Внутрішні бар'єри
Перильні системи - Ø 48 мм
Перильні системи - 70 х 70 мм
Стовпи з ланцюгами
Попереджувальні та захисні профілі
HOLEKS TECH
Головна сторінка
Міське обладнання
Захисне обладнання
Захисні бар'єри
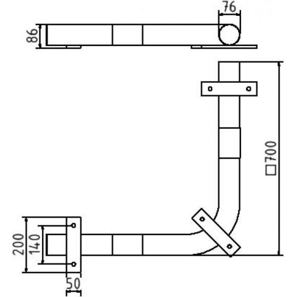
Колесовідбійник кутовий, сталева труба Ø 76 мм, фіксується гвинтами
Колесовідбійник кутовий, сталева труба Ø 76 мм, фіксується гвинтами
Номер позиції:
477_50BG
Колесовідбійник кутовий, сталева труба Ø 76 мм фіксується гвинтами
Орієнтовна Вартість за одиницю:
167,08
€
Додати в кошик
Повернення
Супутні товари
Наразі в цій категорії немає товарів